Fabriksvägen 6

Kontors- och lagerlokal på bra läge

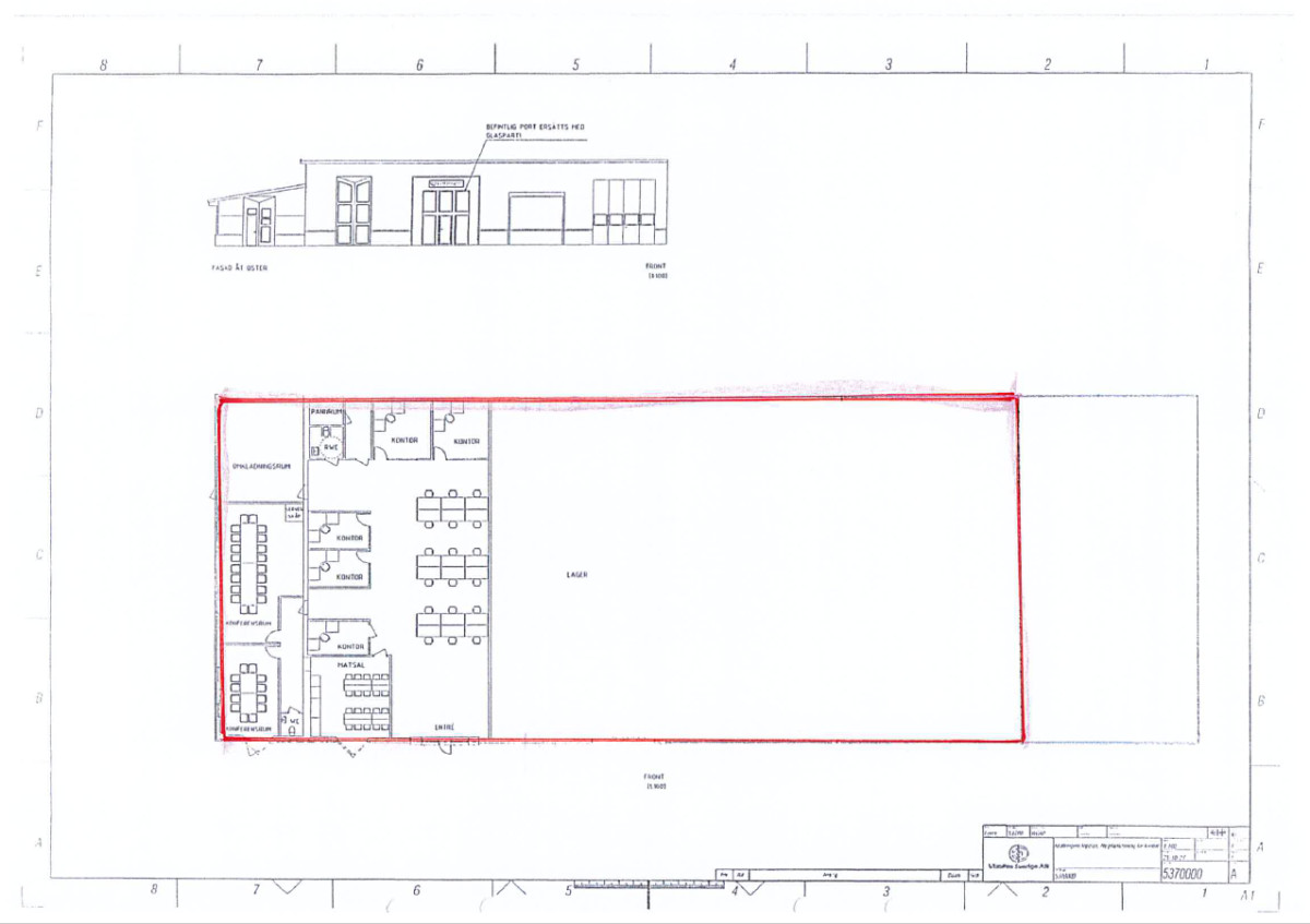
På strategiskt bra läge i Klippan, ligger denna mångsida och välskötta lager- och kontorslokal.
Kontoret består av ett stort kontorslandskap samt 5 mindre enskilda rum, ett större kontorsrum för 2 - 4 personer samt konferensrum och pentry.
Finns omklädningsrum med dusch för herr och dam.
Lagret fördelar sig på en del med varmlager och en del med kallager.
På tomten finns 2 lapplatser med plats för 4 elbilar.
Hyresgästen kan disponera ca 1.350 kvm av gårdsytan efter överenskommelse.

Kort fakta

Typ
Lagerlokal
Upplåtelseform
Hyresrätt
Fast.beteckning
Brännaren 19
Adress
Fabriksvägen 6
Postadress
264 39 Klippan
Område
Klippan
Kommun
Klippan
Visning
Kontakta mäklaren för visning.
Kontaktperson
Mats Boson
Fastighetskonsult
0709-47 16 16
mats.boson@valvethob.se
Intresseanmälan

Sammanställning ytor

Typ
Yta
Hyra
Kontor
432 kvm
-
Lager
864 kvm
-
Summa
1296 kvm